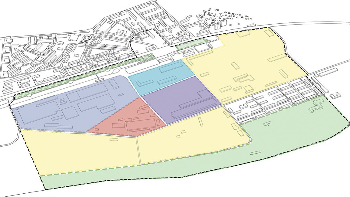
проект Концепция комплексного развития общественных пространств Тракторозаводского района, г. Волгоград
Проект

Концепция комплексного развития общественных пространств Тракторозаводского района, г. Волгоград
Выпускник

Омельченко Вероника
Архитектор, ООО Фрейм Дизайн



